Building Information Modeling
Carry out the relevant integration and coordination of development, plan, design, and construction in building projects based on BIM.
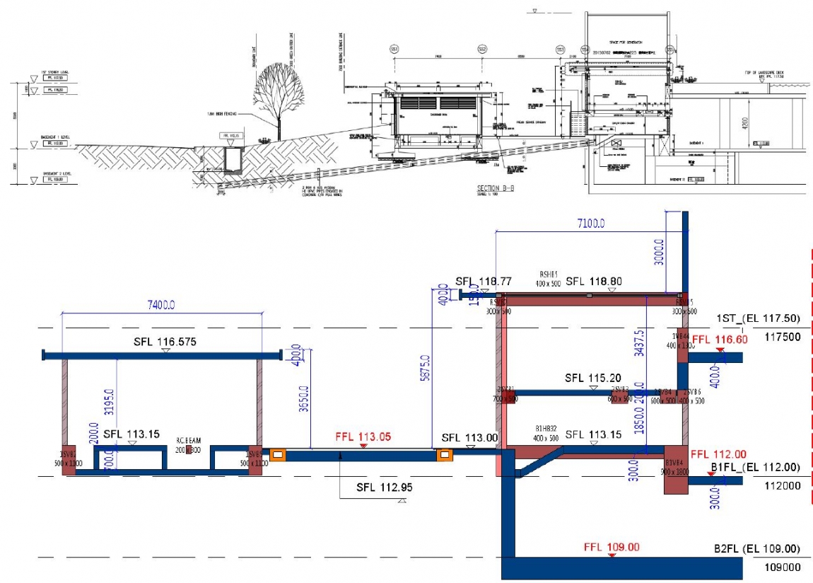
Display the plan map, elevation drawings, profile map, and exterior materials using a model.
Reduce the coordination time between residents and architects through a three-dimensional summary and clarify and plan for
relevant questions about drawings to improve the quality of the entire building before starting project construction.
-
● Cultural and Creative Industries Hall of Kaohsiung Main Public Library
● One Building
● 27 floors above ground/ 6 floors underground
● Total Area 124,193.80㎡Cultural and Creative Industries Hall of Kaohsiung Main Public Library
-
● Yung-Hung-Da-Zhi B3 Shopping Mall & Hotel
● Shopping Mall & Hotel, One Building
● 10 floors above ground / 4 floors underground
● Total Area 30,428.21㎡Yung-Hung-Da-Zhi B3 Shopping Mall & Hotel
-
● Emperor Garden Residential Building
● One Building
● 28 floors above ground / 5 floors underground
● Total Area 27,256.82㎡Emperor Garden Residential Building
-
● Bin Yang Sanchong Hotel Building
● One Building
● 11 floors above ground / 3 floors underground
● Total Area 7766.64㎡Bin Yang Sanchong Hotel Building
-
● Yi-Sen-Yuan Residential Building
● 3 Building, 389 households
● 29 floors above ground / 4 floors underground
● Total Area 50,634.17㎡Yi-Sen-Yuan Residential Building
-
● The Trilinq Residential Building, Clementii Singapore.
● 3 Building, 755 Units
● 36 Floors
● Total Area 75,206.20㎡The Trilinq Residential Building, Clementi Singapore.
-
● Sea Palace Residential Building
● 7 Building
● 21 floors above ground / 3 floors underground
● Total Area 124,000㎡Sea Palace Residential Building
-
● Residential Building at Longshan Sec., Wanhua Dist
● 1 Building
● 21 floors above ground / 5 floors underground
● Total Area 1,229.89㎡Residential Building at Longshan Sec., Wanhua Dist
-
● Da-Zhi-Fu-Huei Residential Building
● 1 Building
● 11 floors above ground / 3 floors underground
● Total Area 36213.18㎡Da-Zhi-Fu-Huei Residential Building

